Проект постройки
Архитектурная часть
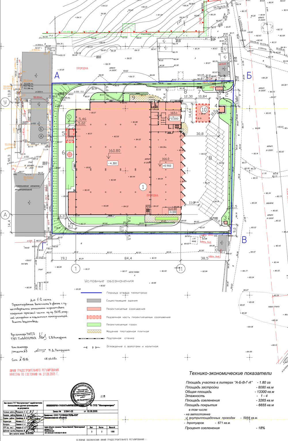
Здание базы форму прямоугольника в осях А-У, 1-11 размерами 90,3м.х84,4м. и состоит из трех блоков:
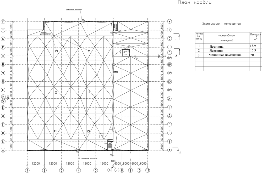
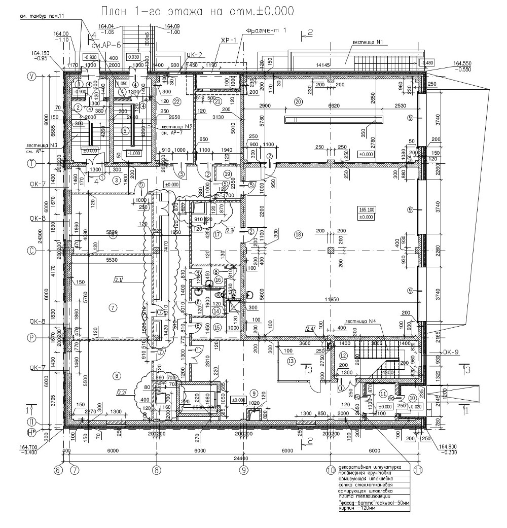
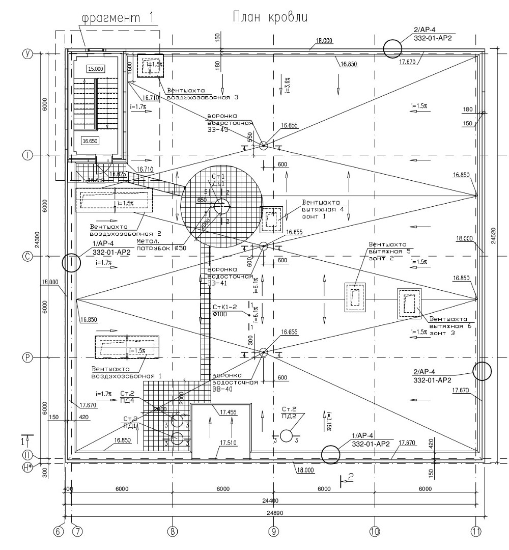
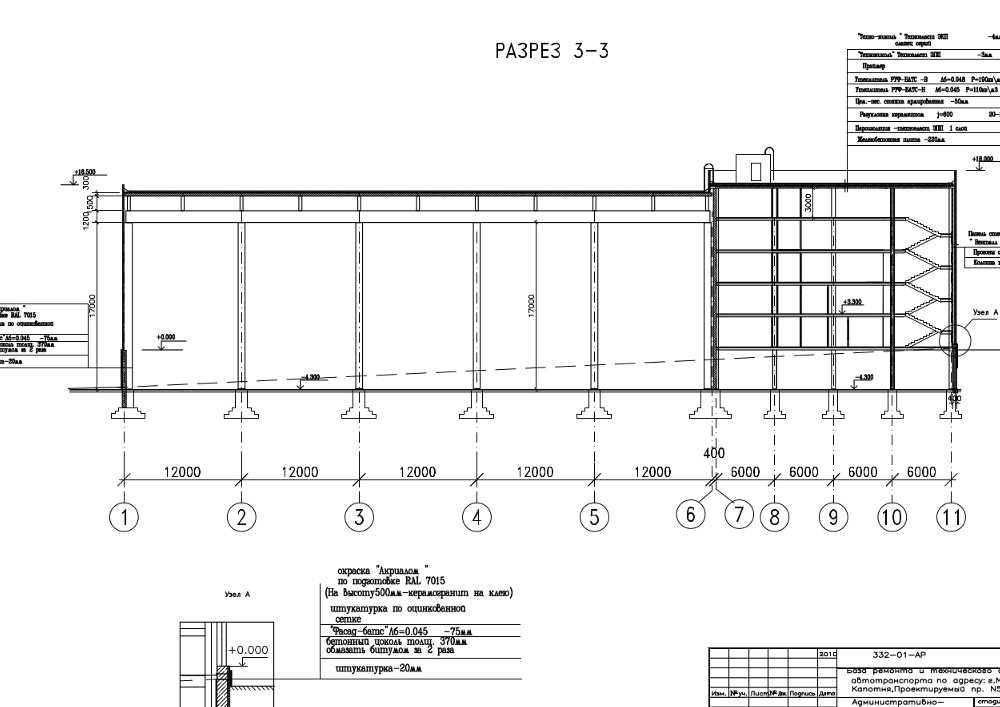
- Блок в осях А-У, 1-6 высотой 17м. до конструкций и размерами 60м.х90.3м. имеет въездные ворота с калиткой и четыре эвакуационных выхода по лестницам, выходящим наружу. Сетка колонн 18м.х12м. Отметка пола -4,300. К блоку пристраивается одноэтажное здание зарядной ,высотой 3,3м и сеткой колонн 6м.х6м. На кровлю выходит наружная металлическая маршевая лестница.
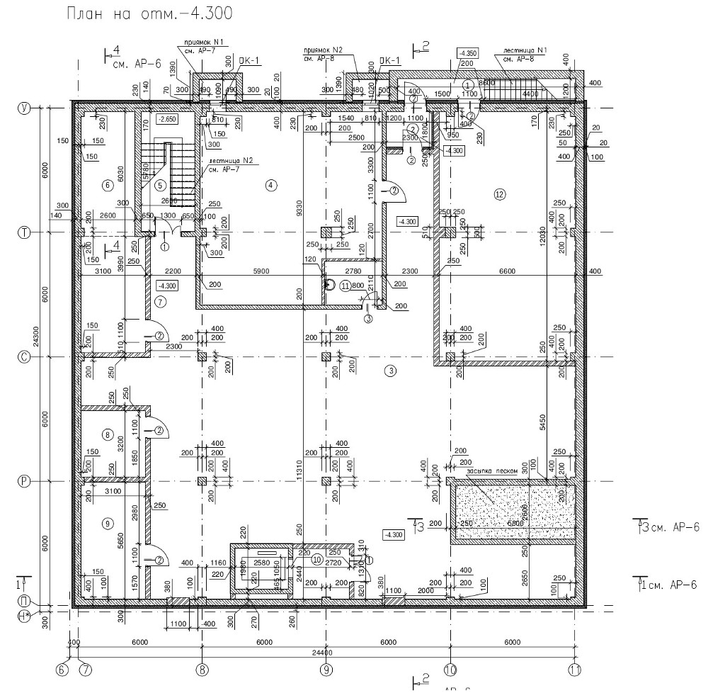
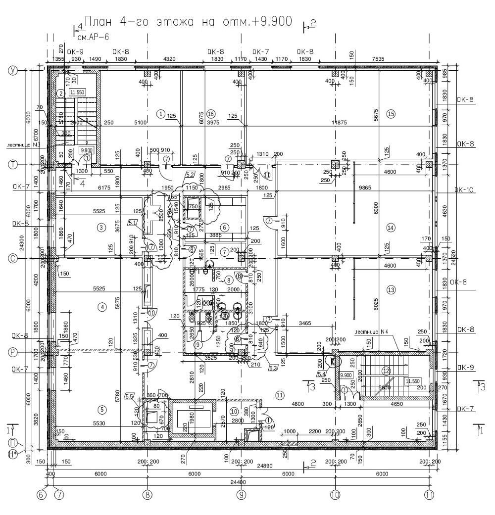
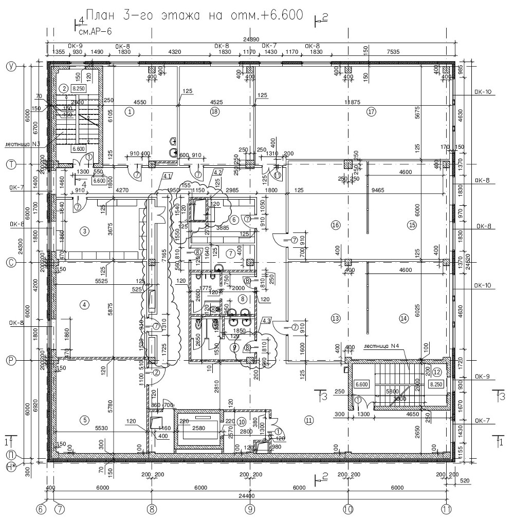
- Блок в осях А-П, 7-11 размерами 66м.х24м. высотой подвальной части склада - 4.3м, мастерских - 3.7м до конструкций. Высота первого этажа до конструкций - 7,5м. и соответственно второго этажа на отм.+ 9,9м - высотой 4м. Первый этаж блока на отм. +0.9м имеет 10 загрузочных ворот фирмы «Ноппап» и одни ворота на отм +0,3м. Операторная имеет свое перекрытие на отм.+3,9м. Над воротами устраивается козырек. Сетка колонн - в подвальной части - 6м.х6м., выше - 6м.х12м. Блок имеет один грузовой лифт с тамбуром в подвальном этаже и на отм. +9,900. Имеется три эвакуационных выхода наружу с первого этажа и два выхода на лестницы по другим этажам. Лестничная клетка блока выходит на кровлю.
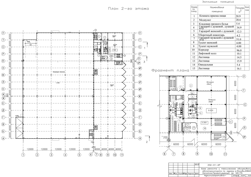
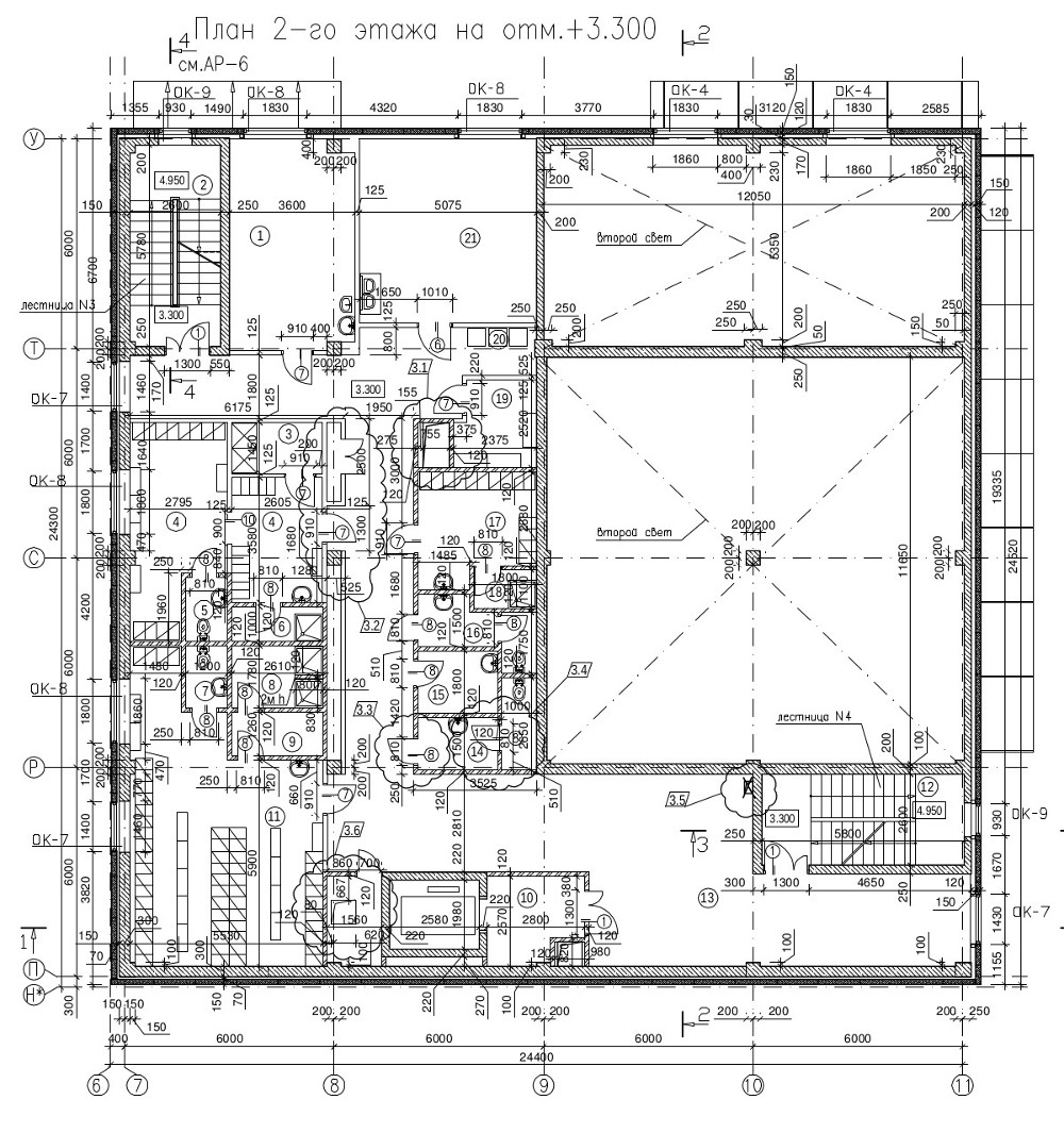
- Блок АБК в осях П-У, 7-11 размерами 24м.х24м. имеет пять этажей высотой 3,3м. и подвалом высотой 4,3м. Сетка колонн блока 6м.х6м.
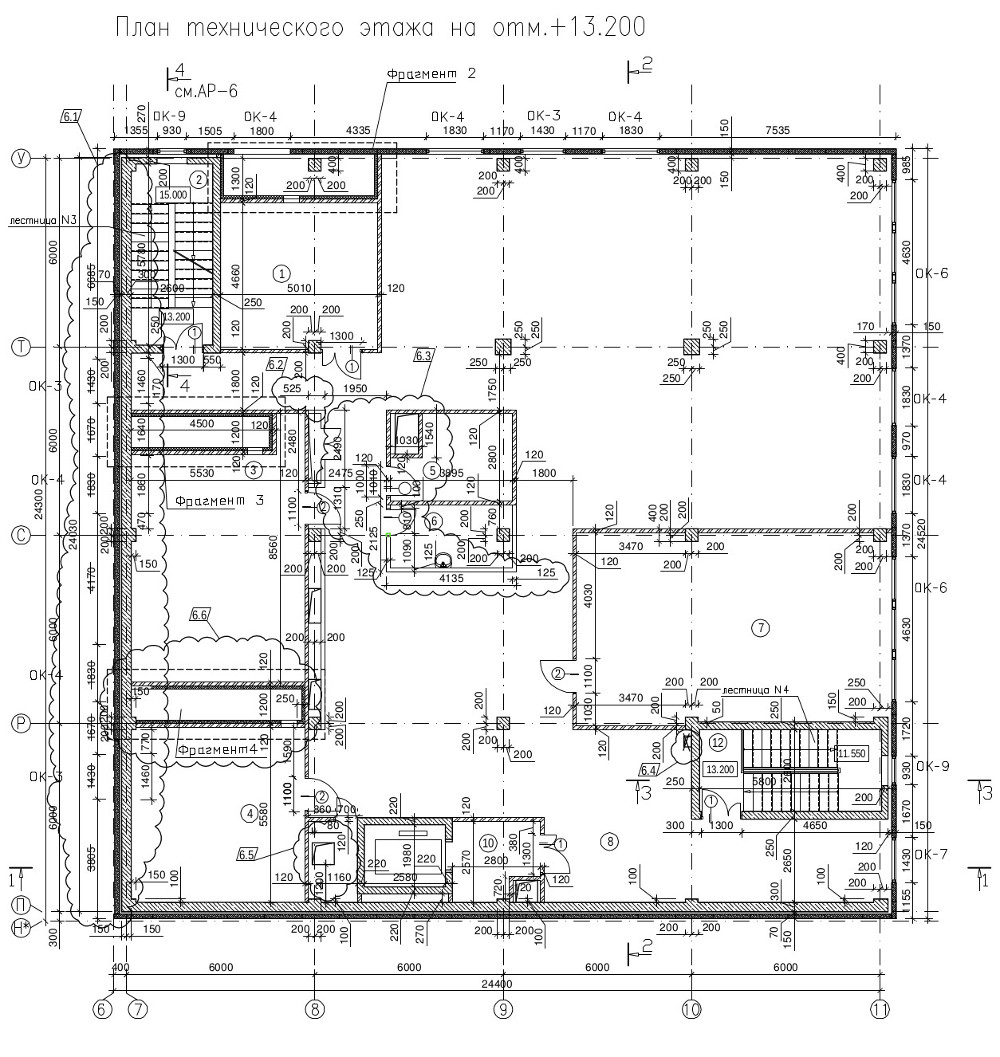
- В подвальном этаже расположены технические помещения, помещение АПТ имеет выход непосредственно наружу. На первом этаже на отм. +0.00 расположены - технический осмотр, ремонт и мойка машин высотой 6,3м. до конструкций и технические помещения высотой 3.0м. Над воротами устраивается козырек. На втором этаже размещены раздевалки рабочих, душевые, медпункт. С третьего по четвертый этаж - кабинеты, комнаты приема пищи, зал совещаний, комната отдыха. На техническом этаже размещаются венткамеры, техпомещения. Здание имеет две эвакуационные лестницы, одна из которых выходит на кровлю. Блок также имеет лифтовой узел с двумя пассажирскими лифтами. Лестницы из подвала выходят непосредственно наружу и имеют подпор воздуха.
Технико-экономические показатели
Площадь участка в литерах «А-Б-В-Г-А» |
1,80 Га |
Площадь застройки |
8080 м2 |
Площадь покрытий |
5970 м2 |
Площадь озеленения |
3950 м2 |
Процент озеленения |
22% |
Площадь застройки основного здания |
7890 м2 |
Строительный объем основного здания |
|
Наземный |
139543 м3 |
Подземный |
10600,6 м3 |
Общая площадь основного здания |
13230 м2 |
Наземный |
11122,7 м2 |
Подземный |
2107,3 м2 |
Площадь застройки КПП №1 |
16,1 м2 |
Площадь застройки КПП №2 |
6,4 м2 |
Строительный объем КПП №1 |
45,1 м3 |
Строительный объем КПП №2 |
18,3 м3 |
Общая площадь КПП №1 |
14,4 м2 |
Общая площадь КПП №2 |
5,4 м2 |
Графические материалы

ГЛАВНАЯ
КАРТА
ПРОЕКТ
ДОКУМЕНТЫ











